Hướng dẫn cài đặt phần cứng Switch Cisco Catalyst 9200 Series
Công tác chuẩn bị trước khi lắp đặt Switch Cisco Catalyst 9200 Series
- Trước khi làm việc trên thiết bị chuyển mạch Cisco Catalyst 9200 Series được kết nối với đường dây điện, hãy tháo đồ trang sức (bao gồm nhẫn, dây chuyền và đồng hồ). Các vật kim loại sẽ nóng lên khi được kết nối với nguồn điện và mặt đất và có thể gây bỏng nghiêm trọng hoặc hàn vật thể kim loại vào các đầu cực.
- Không xếp khung xe lên bất kỳ thiết bị nào khác. Nếu khung xe rơi, nó có thể gây thương tích nặng cho cơ thể và hư hỏng thiết bị.
- Cáp Ethernet phải được che chắn khi sử dụng trong môi trường văn phòng trung tâm.
- Không làm việc trên hệ thống hoặc kết nối hoặc ngắt kết nối cáp trong thời gian sét hoạt động.
- Đọc hướng dẫn cài đặt trước khi kết nối hệ thống với nguồn điện.
- Thiết bị này được thiết kế để lắp đặt trong các khu vực truy cập hạn chế. Chỉ có thể truy cập vào khu vực hạn chế truy cập thông qua việc sử dụng một công cụ đặc biệt, khóa và chìa khóa, hoặc các phương tiện bảo mật khác.
- Tổ hợp phích cắm phải luôn có thể truy cập được vì nó đóng vai trò là thiết bị ngắt kết nối chính.
- Chỉ sử dụng dây dẫn bằng đồng.
- Thiết bị này có thể có nhiều hơn một kết nối nguồn điện. Tất cả các kết nối phải được gỡ bỏ để khử nguồn điện cho thiết bị.
- Chỉ những nhân viên được đào tạo và có trình độ mới được phép lắp đặt, thay thế hoặc bảo dưỡng thiết bị này.
- Việc thải bỏ cuối cùng sản phẩm này phải được xử lý theo tất cả các luật và quy định của quốc gia.
- Để tránh hệ thống quá nóng, không vận hành hệ thống ở khu vực vượt quá nhiệt độ môi trường tối đa được khuyến nghị là: <113 ° F (45 ° C).
- Việc lắp đặt thiết bị phải tuân theo các tiêu chuẩn điện địa phương và quốc gia.
- Để tránh hạn chế luồng không khí, cho phép khoảng hở xung quanh các lỗ thông gió ít nhất là: 3 inch (7,6 cm).
Nguyên tắc cài đặt trên Catalyst 9200 không thể bỏ qua
- Khi xác định vị trí lắp đặt thiết bị, hãy xác minh rằng các nguyên tắc này được đáp ứng:
- Khe hở của bảng điều khiển phía trước và phía sau thiết bị đáp ứng các điều kiện sau:
- Đèn LED phía trước có thể dễ dàng đọc.
- Quyền truy cập vào các cổng là đủ để đi cáp không hạn chế.
- Dây nguồn AC có thể tiếp cận từ ổ cắm điện AC đến đầu nối trên bảng điều khiển phía sau thiết bị.
- Đáp ứng bán kính uốn cong tối thiểu của mô-đun SFP / SFP + và chiều dài đầu nối. Xem tài liệu mô-đun SFP / SFP + để biết thêm thông tin.
- Đi cáp tránh xa các nguồn gây nhiễu điện, chẳng hạn như radio, đường dây điện và thiết bị chiếu sáng huỳnh quang. Đảm bảo rằng cáp nằm cách xa các thiết bị khác một cách an toàn có thể làm hỏng cáp.
- Đảm bảo rằng các mô-đun cấp nguồn và mô-đun quạt được lắp chắc chắn vào khung trước khi di chuyển thiết bị.
- Luồng không khí xung quanh thiết bị và qua các lỗ thông hơi không bị hạn chế.
- Đối với kết nối đồng trên cổng Ethernet, chiều dài cáp từ bộ chuyển mạch đến thiết bị được kết nối có thể lên đến 328 feet (100 mét).
- Nhiệt độ xung quanh thiết bị không vượt quá 113 ° F (45 ° C). Nếu thiết bị được lắp đặt trong cụm kín hoặc nhiều tầng, nhiệt độ xung quanh thiết bị có thể lớn hơn nhiệt độ phòng bình thường.
- Độ ẩm xung quanh thiết bị không vượt quá 95 phần trăm.
- Độ cao tại vị trí lắp đặt không lớn hơn 10.000 feet.
- Các cơ chế làm mát, chẳng hạn như quạt và quạt gió trong thiết bị, có thể hút bụi và các phần tử khác gây tích tụ chất gây ô nhiễm bên trong khung máy, có thể dẫn đến trục trặc hệ thống. Bạn phải lắp đặt thiết bị này trong môi trường không có bụi và vật liệu dẫn điện lạ (chẳng hạn như mảnh kim loại từ các hoạt động xây dựng) càng tốt.
- Kiểm tra những phụ kiện bên trong thiết bị chuyển mạch Catalyst 9200
.jpg)
Bảng chú thích các phụ kiện
| 1 | Bộ chuyển mạch Cisco Catalyst 9200 Series1 | số 8 | Hướng dẫn cáp |
| 2 | Dây nguồn AC | 9 | Vít đầu chảo Phillips M4.0 x 20mm |
| 3 | Bốn chân gắn cao su | 10 | Cáp bảng điều khiển USB RJ-451 |
| 4 | Hai giá đỡ 19 inch | 11 | (Tùy chọn) Cáp bảng điều khiển USB 1 |
| 5 | 4 vít đầu chảo số 12 | 12 | (Tùy chọn) Cáp StackWise1 (0,5 mét, 1 mét hoặc 3 mét) |
| 6 | 4 vít đầu chảo số 10 | 13 | Bộ giữ dây nguồn |
| 7 | 8 vít đầu phẳng Phillips số-8 | - | - |
Một số các bài viết về Catalyst 9200 Series bạn có thể tham khảo thêm:
Hướng dẫn cài đặt phần cứng Switch Cisco Catalyst 9200 Series
Tìm hiểu kiến trúc của Switch Cisco Catalyst 9200 Series
Kiến trúc StackWise của Cisco trên bộ chuyển mạch Catalyst 9200 Series Phần 1
Xác minh hoạt động của thiết bị Switch Catalyst 9200 Series
Trước khi bạn lắp thiết bị vào giá đỡ hoặc trên bàn hoặc giá, hãy bật thiết bị và xác minh rằng thiết bị đã vượt qua POST. Để bật nguồn thiết bị, hãy cắm một đầu của dây nguồn AC vào đầu nối nguồn AC của thiết bị và cắm đầu kia vào ổ cắm điện AC.
Khi bật nguồn, nó sẽ bắt đầu POST, một loạt các bài kiểm tra chạy tự động để đảm bảo rằng thiết bị hoạt động bình thường. Đèn LED có thể nhấp nháy trong quá trình kiểm tra. BÀI ĐĂNG kéo dài khoảng 1 phút. Đèn LED SYST nhấp nháy màu xanh lục và các đèn LED khác vẫn có màu xanh lục đồng nhất.
Khi chuyển đổi hoàn tất POST thành công, đèn LED SYST vẫn màu xanh lục. Các đèn LED sẽ tắt và sau đó phản ánh trạng thái hoạt động của thiết bị. Nếu một thiết bị không thành công POST, đèn LED SYST sẽ chuyển sang màu hổ phách.
Các lỗi POST thường gây tử vong. Gọi cho đại diện hỗ trợ kỹ thuật của Cisco nếu thiết bị chuyển mạch của bạn bị lỗi POST. Sau khi POST thành công, rút dây nguồn khỏi thiết bị và lắp thiết bị vào giá, trên bàn hoặc trên kệ.
.jpg)
Bảng chú thích:
| 1 | Mô-đun cấp điện | 4 | Cáp StackWise 3.0 m |
| 2 | Bộ giữ dây nguồn | 5 | Cáp StackWise 1,0 m và 0,5 m |
| 3 | Mô-đun quạt | - |
Cấu hình cáp ngăn xếp dữ liệu trên Switch Catalyst 9200 Series
Đây là ví dụ về cấu hình được khuyến nghị sử dụng cáp StackWise 0,5 mét được cung cấp. Trong ví dụ này, các thiết bị chuyển mạch được xếp chồng lên nhau trên giá thẳng đứng hoặc trên bàn. Cấu hình này cung cấp các kết nối dự phòng. Ví dụ cấu hình sử dụng cáp StackWise 0,5 mét được cung cấp. Ví dụ cho thấy cấu hình toàn vòng cung cấp các kết nối dự phòng.
.jpg)
Ví dụ về băng thông và phân vùng trong ngăn xếp dữ liệu
Phần này cung cấp các ví dụ về băng thông ngăn xếp dữ liệu và khả năng phân vùng ngăn xếp dữ liệu. Hình bên cho thấy một đống dữ liệu gồm các thiết bị chuyển mạch cung cấp băng thông đầy đủ và các kết nối cáp StackWise dự phòng.
.jpg)
Trình tự bật nguồn cho ngăn xếp thiết bị Catalyst 9200 Series
Hãy xem xét các nguyên tắc này trước khi bạn bật các thiết bị trong ngăn xếp:
Trình tự mà các thiết bị được bật nguồn lần đầu tiên có thể ảnh hưởng đến thiết bị trở thành ngăn xếp chính.
Có hai cách để chọn một thiết bị hoạt động:
Nếu bạn muốn một thiết bị cụ thể trở thành thiết bị hoạt động, hãy định cấu hình thiết bị đó với mức ưu tiên cao nhất. Trong số các thiết bị có cùng mức ưu tiên, thiết bị có địa chỉ MAC thấp nhất sẽ trở thành thiết bị hoạt động.
Nếu bạn muốn một thiết bị cụ thể trở thành thiết bị hoạt động, trước tiên hãy bật thiết bị đó lên. Thiết bị này vẫn là thiết bị hoạt động cho đến khi yêu cầu lựa chọn lại. Sau 2 phút, hãy bật các thiết bị khác trong ngăn xếp. Nếu bạn không muốn chọn thiết bị nào trở thành thiết bị hoạt động, hãy bật nguồn tất cả các thiết bị trong ngăn xếp trong vòng 1 phút. Các thiết bị này tham gia vào cuộc bầu cử thiết bị đang hoạt động. Thiết bị bật nguồn sau 2 phút không tham gia bầu cử.
Tắt thiết bị trước khi bạn thêm hoặc xóa thiết bị khỏi ngăn xếp thiết bị hiện có. Nếu các thay đổi được thực hiện đối với ngăn xếp mà không tắt nguồn thiết bị, các kết quả sau có thể xảy ra:
- Nếu hai ngăn xếp vòng một phần đang hoạt động được kết nối với nhau bằng cáp ngăn xếp, quá trình hợp nhất ngăn xếp có thể diễn ra. Tình huống này tải lại toàn bộ ngăn xếp (tất cả các thiết bị trong ngăn xếp).
- Nếu một số thiết bị trong ngăn xếp được tách biệt hoàn toàn khỏi ngăn xếp, thì có thể xảy ra phân tách ngăn xếp.
Sự phân chia ngăn xếp có thể xảy ra trên một ngăn xếp vòng đầy đủ nếu:
- Nhiều hơn một thiết bị đang chạy bị loại bỏ mà không cần tắt nguồn.
- Nhiều hơn một cáp ngăn xếp được tháo ra mà không cần tắt nguồn.
Sự phân chia ngăn xếp có thể xảy ra trong ngăn xếp vòng một phần nếu:
- Một thiết bị được gỡ bỏ mà không cần tắt nguồn.
- Cáp ngăn xếp được tháo ra mà không cần tắt nguồn.
Trong ngăn xếp được chia tách, tùy thuộc vào vị trí đặt các thiết bị hoạt động và thiết bị chờ, hai ngăn xếp có thể được hình thành (với chế độ chờ tiếp quản như thiết bị hoạt động mới trong ngăn xếp mới được hình thành) hoặc tất cả các thành viên trong ngăn xếp mới được hình thành có thể tải lại .
Rack-Mounting
Việc lắp đặt trong các giá đỡ không phải là giá 19 inch yêu cầu bộ giá đỡ không đi kèm với thiết bị.
.jpg)
Gắn thiết bị vào giá đỡ
Trước khi bắt đầu
Bạn có thể sử dụng số lượng tối thiểu hai vít được đề nghị để lắp giá đỡ giá đỡ vào mỗi bên của thiết bị. Nếu cần, trong khi lắp, bạn có thể sử dụng bốn vít bổ sung được cung cấp trong bộ phụ kiện.
.jpg)
Gắn thiết bị vào giá đỡ
Bước 1
Sử dụng bốn vít máy Phillips đi kèm để gắn các giá đỡ vào giá.
Bước 2
Sử dụng vít máy Phillips màu đen để gắn thanh dẫn cáp vào khung bên trái hoặc bên phải.
.jpg)
Cài đặt Thiết bị trên bàn hoặc giá
Bước 1
Để lắp thiết bị trên bàn hoặc giá, hãy định vị dải keo có chân cao su trong phong bì của bộ gắn.
Bước 2
Gắn bốn chân cao su vào bốn hình khắc tròn ở dưới cùng của khung máy.
.jpg)
Bước 3
Đặt thiết bị trên bàn hoặc giá gần nguồn điện AC.
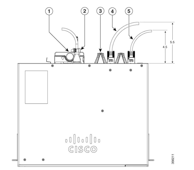
Kết nối với các cổng StackWise
Trước khi bắt đầu
Trước khi kết nối cáp StackWise, hãy đọc phần "Lập kế hoạch ngăn xếp dữ liệu chuyển mạch". Luôn sử dụng cáp StackWise được Cisco phê chuẩn để kết nối các thiết bị chuyển mạch.
Bước 1
Tháo các nắp che bụi khỏi cáp StackWise và cổng StackWise và cất chúng để sử dụng sau này.
Bộ điều hợp StackWise phải được cài đặt trong cổng StackWise để cho phép xếp chồng. Trong thiết lập mặc định, các khoảng trống bộ điều hợp StackWise được cài đặt trong các cổng StackWise. Nếu xếp chồng StackWise được đặt hàng cùng với thiết bị, các bộ điều hợp StackWise đã được cài đặt trong các cổng của StackWise và bạn có thể tiếp tục bước 4.
Bước 2
Tháo các khoảng trống của bộ điều hợp StackWise khỏi mỗi cổng StackWise đích bằng cách sử dụng khóa Torx T15 Allen được cung cấp trong bộ xếp chồng (hoặc tuốc nơ vít Torx T15). Lưu trữ chúng để sử dụng trong tương lai.
Bước 3
Lắp bộ điều hợp StackWise vào mỗi cổng StackWise đích và cố định nó vào vị trí bằng chìa khóa Torx T15 đi kèm hoặc tuốc nơ vít Torx T15.
.jpg)
Bước 4
Kết nối cáp với cổng StackWise trên bảng điều khiển phía sau thiết bị.
Căn chỉnh đầu nối cáp StackWise với bộ điều hợp StackWise trong cổng StackWise.
Cắm đầu nối cáp StackWise vào cổng StackWise. Đảm bảo rằng logo Cisco nằm ở phía trên cùng của đầu nối.
.jpg)
Bước 5
Kết nối đầu kia của cáp với cổng trên thiết bị kia và siết chặt các vít bằng ngón tay. Tránh siết quá chặt các vít.
Kết nối thiết bị với cổng Ethernet
Kết nối cổng Ethernet 10/100/1000 / Multigigabit
Cấu hình cổng 10/100/1000 và Multigigabit Ethernet của bộ chuyển mạch thay đổi để hoạt động ở tốc độ của thiết bị đi kèm. Nếu các cổng đi kèm không hỗ trợ tự động đàm phán, bạn có thể thiết lập thủ công các thông số tốc độ và song công. Việc kết nối các thiết bị không tự động thương lượng hoặc có các thông số tốc độ và song công được đặt thủ công có thể làm giảm hiệu suất hoặc dẫn đến không có liên kết.
Để tối đa hóa hiệu suất, hãy chọn một trong các phương pháp sau để định cấu hình cổng Ethernet:
- Để các cổng tự động thỏa thuận cả tốc độ và song công.
- Đặt tốc độ giao diện và các thông số song công trên cả hai đầu của kết nối.
Kết nối Auto-MDIX
Tính năng tự động đàm phán và tính năng tự động MDIX được bật theo mặc định trên nút chuyển.
Với tính năng tự động thương lượng, cấu hình cổng chuyển đổi thay đổi để hoạt động với tốc độ của thiết bị được đính kèm. Nếu thiết bị kèm theo không hỗ trợ tự động đàm phán, bạn có thể đặt thủ công các thông số tốc độ giao diện chuyển đổi và hai mặt.
Với auto-MDIX, thiết bị sẽ phát hiện loại cáp cần thiết cho các kết nối Ethernet đồng và định cấu hình giao diện cho phù hợp.
Nếu tự động MDIX bị tắt, hãy sử dụng các hướng dẫn trong bảng này để chọn đúng cáp.
Kết nối cổng PoE và POE +
Các cổng PoE và PoE + 10/100/1000 có cùng cài đặt tự động thương lượng và các yêu cầu về cáp được mô tả trong Cổng 10/100/1000 . Các cổng này có thể cung cấp nguồn PoE và PoE + nội tuyến.
Nguồn nội tuyến PoE hỗ trợ các thiết bị tuân theo tiêu chuẩn IEEE 802.3af, cũng như Điện thoại IP Cisco và Điểm truy cập Aironet của Cisco. Mỗi cổng có thể cung cấp tối đa 15,4 W PoE. Nguồn nội tuyến PoE + hỗ trợ các thiết bị tuân theo tiêu chuẩn IEEE 802.3at, bằng cách cung cấp tới 30 W nguồn PoE + trên mỗi cổng cho tất cả các cổng chuyển đổi.
Xem Mô-đun cấp nguồn để biết các mô-đun cấp nguồn cần thiết để hỗ trợ PoE và PoE + trên các thiết bị chuyển mạch 24 và 48 cổng.
-
Cisco Sài Gòn phân phối switch Cisco catalyst 3650 chính hãng uy tín
-
Cisco WAP581 giải pháp mới sự lựa chọn cho doanh nghiệp vừa và nhỏ
-
Bộ định tuyến router Cisco 4000 những thông tin cần biết
-
Switch Cisco Catalyst 2960L dòng sản phẩm mới của hãng Cisco có gì đặc biệt?
-
Tìm hiểu switch cisco 10Gb, phân biệt và lựa chọn hợp lý cho hệ thống mạng
-
Cisco 2960 24 ports có bao nhiêu loại? Tìm hiểu và lựa chọn Cisco 2960 24 cổng
